現在の検索条件
詳細条件変更
神奈川県 相談も含む スケルトン スケルトン(事務所仕様)

路線から検索する

エリアから検索する

  • 206見つかりました
  • 物件番号
    37803
    公開日
    • スケルトン

    茅ケ崎駅徒歩2分 10坪 エステサロンなどがご相談可能なスケルトン物件です!

    • photo

      お気に入りに追加

    • photo
    • 茅ヶ崎駅徒歩2分の駅近スケルトン物件です。

      ■茅ヶ崎駅北口の商業エリアに位置し、駅からのアクセスが非常にスムーズな利便性の高い立地です。

      ■エステサロンなどが入居可能な物件です。
      ※美容室、アイラ…

      賃料
      176,000(税込)
      店舗種別
      出店可能業種
      エステサロン・SPA / ネイルサロン / マッサージ・リラクゼーション / 鍼灸・整骨院 / クリニック / ジム・フィットネス
      管・共
      20,900円(税込) / 円
      エリア
      神奈川県茅ヶ崎市新栄町
      最寄り駅
      JR東海道本線(東京~熱海) 茅ヶ崎駅 2分
      階数・坪数/㎡
      3F / 10坪(33.09m²)
    • 物件番号
      37799
      公開日
      • スケルトン

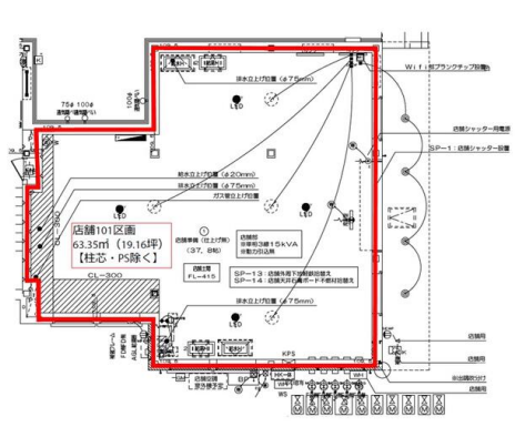
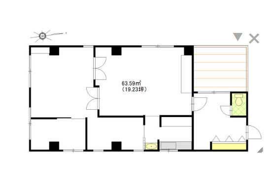
      新子安駅徒歩2分 19坪 1階路面 美容室含む全業種相談可 スケルトン物件

      • photo

        お気に入りに追加

      • photo
      • 新子安駅徒歩2分 19坪 1階路面 美容室含む全業種相談可 スケルトン物件

        ■美容室を含む美容サロン全般相談可能
        (ガスの引き込みあります)

        ■JR新子安駅と京急新子安駅から徒歩2分以内の、非常に…

        • 間取り図あり
      賃料
      306,001(税込)
      店舗種別
      出店可能業種
      美容室 / 理容室 / エステサロン・SPA / アイラッシュサロン / ネイルサロン / マッサージ・リラクゼーション / 鍼灸・整骨院
      管・共
      円 / 円
      エリア
      神奈川県横浜市神奈川区子安通
      最寄り駅
      JR京浜東北線 新子安駅 2分
      階数・坪数/㎡
      1F / 19.16坪(63.35m²)
    • 物件番号
      36290
      公開日
      • スケルトン

      【築浅】登戸駅徒歩1分 17坪 スケルトン物件

      • photo

        お気に入りに追加

      • photo
      • 登戸駅徒歩1分のスケルトン物件

        ■美容室含む美容サロン全般相談可能です。

        ■2021年竣工の築浅でビルグレードも高い物件です。

        ■ガス・⽔道・電気引き込み有り、 天⾼:3階2580㎜

        ■看板料…

        • 間取り図あり
      賃料
      484,000(税込)
      店舗種別
      出店可能業種
      美容室 / 理容室 / エステサロン・SPA / アイラッシュサロン / ネイルサロン / マッサージ・リラクゼーション / 鍼灸・整骨院 / クリニック / ジム・フィットネス
      管・共
      円 / 円
      エリア
      神奈川県川崎市多摩区登戸
      最寄り駅
      小田急小田原線 登戸駅 1分
      階数・坪数/㎡
      3F / 17.67坪(58.44m²)
    • 物件番号
      37653
      公開日
      • スケルトン

      本厚木駅徒歩5分 13坪 スケルトン物件

      • photo

        お気に入りに追加

      • 本厚木駅徒歩5分のスケルトン物件

        ■美容室含む美容サロン全般ご相談可能です

        ■2025年10月新築の物件です。

        ■1階路面店で視認性良好です。

        ※保証会社の加入が必要となる場合がございます。

        賃料
        230,001(税込)
        店舗種別
        出店可能業種
        美容室 / 理容室 / エステサロン・SPA / アイラッシュサロン / ネイルサロン / マッサージ・リラクゼーション / 鍼灸・整骨院 / クリニック / ジム・フィットネス
        管・共
        円 / 円
        エリア
        神奈川県厚木市旭町
        最寄り駅
        小田急小田原線 本厚木駅 5分
        階数・坪数/㎡
        1F / 13.89坪(45.95m²)
      • 物件番号
        37725
        公開日
        • スケルトン

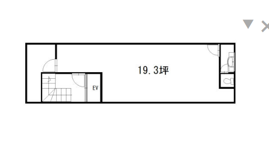
        茅ヶ崎駅徒歩9分 23坪 スケルトン物件 美容室相談可能

        • photo

          お気に入りに追加

        • photo
        • 茅ヶ崎駅杜甫9分のスケルトン物件です。

          ■ 約23坪のちょうど良い広さでバランスの取れた美容室レイアウトが可能
          セット面・シャンプー台を無理なく配置でき、少人数〜中規模の美容室運営に適したサイズです…

          • 間取り図あり
        賃料
        291,500(税込)
        店舗種別
        出店可能業種
        美容室 / 理容室 / アイラッシュサロン / ネイルサロン / マッサージ・リラクゼーション
        管・共
        円 / 円
        エリア
        神奈川県茅ヶ崎市中海岸
        最寄り駅
        JR東海道本線(東京~熱海) 茅ヶ崎駅 9分
        階数・坪数/㎡
        1F / 23.04坪(76.19m²)
      • 物件番号
        37721
        公開日
        • スケルトン

        武蔵新城駅徒歩1分 18.55坪 居抜き 美容室相談可能

        • photo

          お気に入りに追加

        • photo
        • 武蔵新城駅徒歩1分のスケルトン物件です。

          ■ 約18坪の使いやすい広さでコンパクトな美容室運営に最適
          セット面・シャンプー台を効率よく配置でき、少人数体制の美容室にちょうど良いサイズです。

          ■ 1…

          • 間取り図あり
        賃料
        408,100(税込)
        店舗種別
        出店可能業種
        美容室 / 理容室 / エステサロン・SPA / アイラッシュサロン / ネイルサロン / マッサージ・リラクゼーション
        管・共
        円 / 円
        エリア
        神奈川県川崎市中原区上新城
        最寄り駅
        1分
        階数・坪数/㎡
        1F / 18.55坪(61.32m²)
      • 物件番号
        37720
        公開日
        • スケルトン

        長津田駅徒歩1分 18.97坪 スケルトン 美容室相談可能

        • photo

          お気に入りに追加

        • photo
        • 長津田駅徒歩1分のスケルトン物件です。

          ■ 約18坪の使いやすい広さでコンパクトな美容室運営に最適
          セット面・シャンプー台を効率よく配置でき、少人数体制の美容室にちょうど良いサイズです。

          ■ スケ…

          • 間取り図あり
        賃料
        396,000(税込)
        店舗種別
        出店可能業種
        美容室 / 理容室 / エステサロン・SPA / アイラッシュサロン / ネイルサロン / マッサージ・リラクゼーション
        管・共
        円 / 44,000円(税込)
        エリア
        神奈川県横浜市緑区長津田
        最寄り駅
        東急田園都市線 長津田駅 1分
        階数・坪数/㎡
        3F / 18.97坪(62.71m²)
      • 物件番号
        37719
        公開日
        • スケルトン

        妙蓮寺駅徒歩1分 20.57坪 スケルトン 美容室相談可能

        • photo

          お気に入りに追加

        • photo
        • 妙蓮寺駅徒歩1分のスケルトン物件です。

          ■ 約20坪のちょうど良い広さで効率的な美容室レイアウトが可能
          セット面・シャンプー台をバランス良く配置でき、少人数〜中規模の美容室運営に適したサイズです。

          • 間取り図あり
        賃料
        271,788(税込)
        店舗種別
        出店可能業種
        美容室 / 理容室 / エステサロン・SPA / アイラッシュサロン / ネイルサロン / マッサージ・リラクゼーション / 鍼灸・整骨院
        管・共
        円 / 円
        エリア
        神奈川県横浜市港北区菊名
        最寄り駅
        東急東横線 妙蓮寺駅 1分
        階数・坪数/㎡
        2F / 20.57坪(67.99m²)
      • 物件番号
        37718
        公開日
        • スケルトン

        武蔵新城駅徒歩5分 34.30坪 一棟貸店舗

        • photo

          お気に入りに追加

        • photo
        • 武蔵新城駅徒歩5分のスケルトン物件です。

          ■ 約34坪のゆとりある広さで多席レイアウトが可能
          セット面・シャンプー台を複数配置でき、スタッフ体制を組んだ美容室運営にも対応しやすいサイズです。

          ■ …

          • 間取り図あり
        賃料
        275,000(税込)
        店舗種別
        出店可能業種
        美容室 / 理容室 / エステサロン・SPA / アイラッシュサロン / ネイルサロン / マッサージ・リラクゼーション / 鍼灸・整骨院
        管・共
        円 / 円
        エリア
        神奈川県川崎市中原区新城
        最寄り駅
        JR南武線 武蔵新城駅 5分
        階数・坪数/㎡
        1F / 34.3坪(113.38m²)
      • 物件番号
        37709
        公開日
        • 事務所仕様

        平塚駅徒歩5分 26坪 1階路面店 美容業種全般のご相談可能な事務所仕様物件です!

        • photo

          お気に入りに追加

        • photo
        • 平塚駅徒歩5分の26坪美容業種全般のご相談可能な事務所仕様物件です。

          ■27坪超の広々としたワンフロアで、セット面を多く配置した美容室や、アイラッシュ・ネイルを併設した複合サロンも相談可能です。

          賃料
          132,000(税込)
          店舗種別
          出店可能業種
          美容室 / 理容室 / エステサロン・SPA / アイラッシュサロン / ネイルサロン / マッサージ・リラクゼーション
          管・共
          円 / 円
          エリア
          神奈川県平塚市明石町
          最寄り駅
          JR東海道本線(東京~熱海) 平塚駅 5分
          階数・坪数/㎡
          1F / 26坪(89.24m²)
        • 物件番号
          37703
          公開日
          • 事務所仕様

          大船駅徒歩3分 路面店 12坪 美容業種相談可能な事務所仕様物件です。

          • photo

            お気に入りに追加

          • photo
          • 大船駅徒歩3分の事務所仕様物件です。

            ■芸術館通りに面する視認性の良い物件です。

            ■美容室を含め、美容サロン全般入居相談可能です。

            ■物件お引渡しは2026年5月以降になります。

            ■1階路面店…

            賃料
            311,454(税込)
            店舗種別
            出店可能業種
            美容室 / 理容室 / エステサロン・SPA / アイラッシュサロン / ネイルサロン / マッサージ・リラクゼーション / 鍼灸・整骨院 / クリニック / ジム・フィットネス
            管・共
            21,780円(税込) / 円
            エリア
            神奈川県鎌倉市大船
            最寄り駅
            JR京浜東北線 大船駅 3分
            階数・坪数/㎡
            1F / 12.8坪(42.57m²)
          • 物件番号
            37699
            公開日
            • スケルトン

            大倉山駅徒歩8分 1階路面 約12坪 美容室相談可能!

            • photo

              お気に入りに追加

            • photo
            • 大倉山駅徒歩8分のスケルトン物件です。

              1. 大倉山駅から徒歩8分の好立地に位置する、2020年築の築浅路面店物件です。商店街に面しており、視認性も良好で、新規出店をお考えの方に最適です。

              2. …

              • 間取り図あり
            賃料
            214,500(税込)
            店舗種別
            出店可能業種
            美容室 / 理容室 / エステサロン・SPA / アイラッシュサロン / ネイルサロン / マッサージ・リラクゼーション / 鍼灸・整骨院 / クリニック / ジム・フィットネス
            管・共
            5,500円(税込) / 円
            エリア
            神奈川県横浜市港北区大曽根
            最寄り駅
            東急東横線 大倉山駅 8分
            階数・坪数/㎡
            1F / 12.02坪(39.73m²)
          • 物件番号
            37652
            公開日
            • 事務所仕様

            菊名駅徒歩2分1階 約25坪 事務所仕様 美容室相談可能!

            • photo

              お気に入りに追加

            • photo
            • 菊名駅徒歩2分の事務所仕様物件です。

              ■菊名駅徒歩2分、1階路面の物件で、視認性が高く集客が見込めます。

              ■東急東横線、JR横浜線の2路線利用可能で、アクセス良好です。

              ■美容業種全般のご相談可…

              賃料
              440,000(税込)
              店舗種別
              出店可能業種
              美容室 / 理容室 / エステサロン・SPA / アイラッシュサロン / ネイルサロン / マッサージ・リラクゼーション / 鍼灸・整骨院 / クリニック / ジム・フィットネス
              管・共
              16,500円(税込) / 円
              エリア
              神奈川県横浜市港北区大豆戸町
              最寄り駅
              東急東横線 菊名駅 2分
              階数・坪数/㎡
              1F / 25.21坪(83.37m²)
            • 物件番号
              37634
              公開日
              • スケルトン

              日吉駅徒歩3分 スケルトン物件 27坪 1階路面店

              • photo

                お気に入りに追加

              • photo
              • 日吉駅徒歩3分のスケルトン物件です。

                ■ 約27坪の使いやすい広さで自由度の高い美容室レイアウトが可能
                セット面・シャンプー台をバランス良く配置でき、安定した美容室運営に適したサイズ感です。

                ■ …

                • 間取り図あり
              賃料
              445,500(税込)
              店舗種別
              出店可能業種
              美容室 / 理容室 / エステサロン・SPA / アイラッシュサロン / ネイルサロン / マッサージ・リラクゼーション / 鍼灸・整骨院 / クリニック / ジム・フィットネス
              管・共
              円 / 円
              エリア
              神奈川県横浜市港北区日吉本町
              最寄り駅
              東急東横線 日吉駅 3分
              階数・坪数/㎡
              1F / 27坪(89.26m²)
            • 物件番号
              37614
              公開日
              • スケルトン

              向ヶ丘遊園駅徒歩3分 約16坪 美容室相談可能 スケルトン物件

              • photo

                お気に入りに追加

              • photo
              • 向ヶ丘遊園駅徒歩3分のスケルトン物件です

                ■駅前徒歩3分の好立地!
                 人通りが多く、学生・ファミリー層から社会人まで幅広い客層が見込めるエリアに、約16坪の使いやすいスケルトン物件が登場しました。

                • 間取り図あり
              賃料
              346,700(税込)
              店舗種別
              出店可能業種
              美容室 / 理容室 / エステサロン・SPA / アイラッシュサロン / ネイルサロン / マッサージ・リラクゼーション
              管・共
              円 / 3,300円(税込)
              エリア
              神奈川県川崎市多摩区登戸
              最寄り駅
              小田急小田原線 向ヶ丘遊園駅 3分
              階数・坪数/㎡
              2F / 16.3坪(53.94m²)
            • 物件番号
              37551
              公開日
              • 事務所仕様

              辻堂駅徒歩6分 13坪 1階路面店 美容業種全般のご相談可能な事務所仕様物件です!

              • photo

                お気に入りに追加

              • photo
              • 辻堂駅徒歩6分の1階路面店事務所仕様物件です。

                ■JR東海道本線・湘南新宿ライン「辻堂駅」から徒歩6分でアクセス可能です。

                ■落ち着いた住宅・商業混在エリアに位置しています。

                ■美容業種全般のご…

                賃料
                191,400(税込)
                店舗種別
                出店可能業種
                美容室 / 理容室 / エステサロン・SPA / アイラッシュサロン / ネイルサロン / マッサージ・リラクゼーション / 鍼灸・整骨院
                管・共
                円 / 円
                エリア
                神奈川県藤沢市辻堂元町
                最寄り駅
                JR東海道本線(東京~熱海) 辻堂駅 6分
                階数・坪数/㎡
                1F / 13坪(44.09m²)
              • 物件番号
                37600
                公開日
                • 事務所仕様

                川崎駅徒歩9分6階 約28坪 事務所仕様 美容室相談可能!

                • photo

                  お気に入りに追加

                • photo
                • 川崎駅徒歩9分の事務所仕様物件です。

                  ■希少性の高い、川崎エリアの美容室相談可能物件です!

                  ■国道15号線に面した物件で、視認性が高いです。

                  ■物件周辺には飲食店や商業施設が多く、集客が見込めま…

                  • 間取り図あり
                賃料
                440,000(税込)
                店舗種別
                出店可能業種
                美容室 / 理容室 / エステサロン・SPA / アイラッシュサロン / ネイルサロン / マッサージ・リラクゼーション / 鍼灸・整骨院 / クリニック / ジム・フィットネス
                管・共
                22,000円(税込) / 円
                エリア
                神奈川県川崎市川崎区東田町
                最寄り駅
                JR京浜東北線 川崎駅 9分
                階数・坪数/㎡
                6F / 28.01坪(92.6m²)
              • 物件番号
                37603
                公開日
                • 事務所仕様

                新丸子駅徒歩2分 1階路面 約15坪 スケルトン 美容室相談可能!

                • photo

                  お気に入りに追加

                • photo
                • 新丸子駅徒歩2分のスケルトン物件です。

                  ■新丸子駅徒歩2分の駅近物件で、アクセス良好です!

                  ■物件周辺は飲食店やコンビニが多く、人通りが多いエリアです!

                  ■スケルトン物件のため、内装・レイアウト…

                  • 間取り図あり
                賃料
                385,000(税込)
                店舗種別
                出店可能業種
                美容室 / 理容室 / エステサロン・SPA / アイラッシュサロン / ネイルサロン / マッサージ・リラクゼーション / 鍼灸・整骨院 / クリニック / ジム・フィットネス
                管・共
                22,000円(税込) / 円
                エリア
                神奈川県川崎市中原区新丸子町
                最寄り駅
                東急東横線 新丸子駅 2分
                階数・坪数/㎡
                1F / 15.27坪(50.5m²)
              • 物件番号
                37561
                公開日
                • スケルトン

                新丸子駅徒歩2分 15坪 スケルトン

                • photo

                  お気に入りに追加

                • photo
                • 新丸子駅徒歩2分のスケルトン物件です

                  ■新丸子駅目の前の通り沿いの路面店物件で視認性抜群の物件です。

                  ■美容室を含むネイル・アイラッシュ・エステサロンへおススメ物件です。
                   ※美容室は内覧して現地…

                  • 間取り図あり
                賃料
                385,000(税込)
                店舗種別
                出店可能業種
                美容室 / 理容室 / エステサロン・SPA / アイラッシュサロン / ネイルサロン / マッサージ・リラクゼーション / 鍼灸・整骨院
                管・共
                22,000円(税込) / 円
                エリア
                神奈川県川崎市中原区新丸子町
                最寄り駅
                東急東横線 新丸子駅 2分
                階数・坪数/㎡
                1F / 15.27坪(50.5m²)
              • 物件番号
                37505
                公開日
                • 事務所仕様

                新丸子駅徒歩3分 28坪 美容業種全般のご相談可能な事務所仕様物件です!

                • photo

                  お気に入りに追加

                • photo
                • 新丸子駅徒歩3分の事務所仕様物件です。

                  ■人気の武蔵小杉~新丸子エリアでのテナントです。

                  ■美容業種全般のご相談が可能です。

                  ■ワンフロアワンテナントです。
                  28坪もありますので、レイアウトは組…

                  賃料
                  660,000(税込)
                  店舗種別
                  出店可能業種
                  美容室 / 理容室 / エステサロン・SPA / アイラッシュサロン / ネイルサロン / マッサージ・リラクゼーション / 鍼灸・整骨院
                  管・共
                  円 / 円
                  エリア
                  神奈川県川崎市中原区新丸子町
                  最寄り駅
                  東急東横線 新丸子駅 3分
                  階数・坪数/㎡
                  3F / 28坪(94.5m²)

                条件を絞り込む

                あなたに合った店舗イメージ

                検索条件

                現在の検索条件

                エリアから検索する

                路線から検索する

                ※詳細条件は下記で選択

                物件タイプ
                居抜き前店舗種別
                出店可能業種

                賃料
                広さ(坪)
                坪単価
                フロア
                駐車場
                駅徒歩
                サロンまるごとサポート(詳細)≫
                セットアップ

                事業譲渡案件はこちら

                Menu
                PageTop