銀座一丁目駅徒歩2分 約11坪 事務所仕様物件°˖✧
-
- 物件番号
- 37467
-
- 事務所仕様
- [37467]お気に入り追加
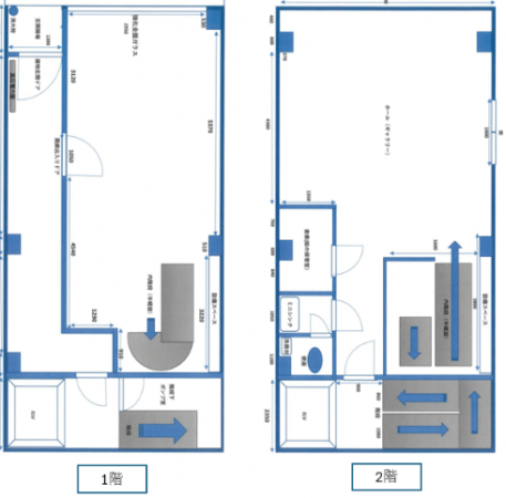
- 間取り図あり
- 賃料
- 138,600円(税込)
- 坪単価
- 12,095円/坪(税込)
- 坪数/㎡・フロア
- 11.46坪(37.9m²) / 10F
- エリア
- 東京都中央区八重洲
- 出店可能業種
- 美容室
- 理容室
- エステサロン・SPA
- アイラッシュサロン
- ネイルサロン
- マッサージ・リラクゼーション
- 鍼灸・整骨院
- クリニック
- ジム・フィットネス
- 温浴・サウナ
- その他
- 最寄り駅
- 東京メトロ有楽町線 銀座一丁目駅 徒歩2分
- 物件資料
- ログイン後に物件資料をご確認いただけます
物件詳細問合せ先情報
銀座一丁目駅徒歩2分の事務所仕様物件です!
■京橋大根河岸通りに面した視認性の高い物件です。
■美容室を除く美容サロン全般入居相談可能です。
■銀座一丁目駅以外にも東京駅や京橋駅からも徒歩10分圏内とアクセス良好な立地です。
※住所の開示は内覧時にさせていただいておりますため、事前のお伝えが出来かねます。
※保証会社の加入が必須となる場合がございます。
※記載内容は現在の借主の賃貸条件になります。新規賃貸借契約にあたり条件が変動する場合がございますので予めご承知おきください。
※成約時には、不動産仲介手数料(アレンジメントフィー)として賃料1ヶ月分相当額(税別)が掛かります。
-
賃貸条件
-
- 賃料

-
- 仲介手数料

-
- 管理費

-
- 契約期間

-
- 共益費

-
- 更新料

-
- 敷金

-
- その他費用

-
- 礼金

-
- 契約種別

-
- 償却

-
- 譲渡代金

-
- 保証金

-
- 初期費用
(目安) 
- 初期費用
-
物件詳細
-
- 物件番号

-
- 公開日

- 物件タイプ

-
- 賃料

-
- 坪単価

- 所在地

- 最寄り駅

-
- フロア情報

-
- 坪数/㎡

-
- 駐車場

-
- エレベーター

お電話いただく際には物件番号(37467)をお伝えいただくとスムーズです。








