大門駅徒歩4分 32坪 1階路面店 美容業種全般ご相談可能です!
-
- 物件番号
- 36773
-
- スケルトン
- [36773]お気に入り追加
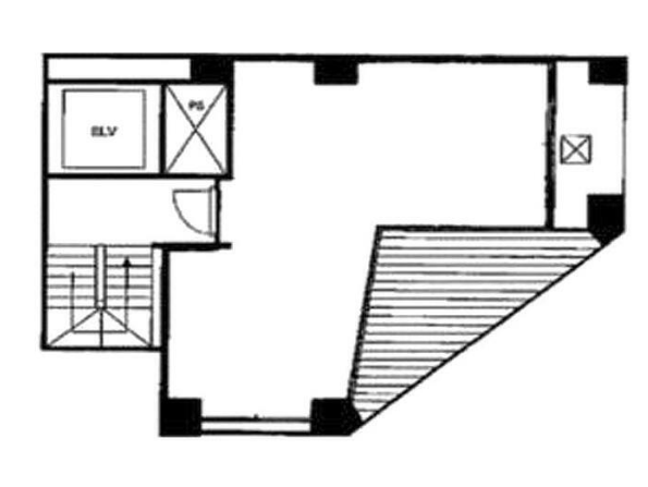
- 間取り図あり
- 賃料
- 762,300円(税込)
- 坪単価
- 23,822円/坪(税込)
- 坪数/㎡・フロア
- 32坪(109.09m²) / 1F
- エリア
- 東京都港区芝大門
- 出店可能業種
- 美容室
- 理容室
- エステサロン・SPA
- アイラッシュサロン
- ネイルサロン
- マッサージ・リラクゼーション
- 鍼灸・整骨院
- クリニック
- ジム・フィットネス
- 温浴・サウナ
- その他
- 最寄り駅
- JR山手線 浜松町駅 徒歩8分
- 物件資料
- ログイン後に物件資料をご確認いただけます
物件詳細問合せ先情報
大門駅徒歩4分の1階路面店スケルトン物件です。
■都営浅草線・大江戸線「大門駅」徒歩4分、都営三田線「御成門駅」徒歩5分、JR山手線・京浜東北線「浜松町駅」徒歩8分と複数路線・複数駅が利用可能です。
■周辺はオフィス街+飲食店が多く、昼夜問わず人通りがあるエリアです。
■1フロア1テナントで、他業種との干渉がなくプライベート感のある空間づくりができます。
※住所の開示は内覧時にさせていただいておりますため、事前のお伝えが出来かねます。
※保証会社の加入が必須となる場合がございます。
※記載内容は現在の借主の賃貸条件になります。新規賃貸借契約にあたり条件が変動する場合がございますので予めご承知おきください。
※成約時には、不動産仲介手数料(アレンジメントフィー)として賃料1ヶ月分相当額(税別)がかかります。
-
賃貸条件
-
- 賃料

-
- 仲介手数料

-
- 管理費

-
- 契約期間

-
- 共益費

-
- 更新料

-
- 敷金

-
- その他費用

-
- 礼金

-
- 契約種別

-
- 償却

-
- 譲渡代金

-
- 保証金

-
- 初期費用
(目安) 
- 初期費用
-
物件詳細
-
- 物件番号

-
- 公開日

- 物件タイプ

-
- 賃料

-
- 坪単価

- 所在地

- 最寄り駅

-
- フロア情報

-
- 坪数/㎡

-
- 駐車場

-
- エレベーター

お電話いただく際には物件番号(36773)をお伝えいただくとスムーズです。








